Das Edition 490 besticht durch die schicke Stadthausoptik und das markante Ziermauerwerk. Einzigartig wird es durch den asymmetrisch angeordneten Zwerchgiebel. Machen Sie »Ihr« Haus daraus: Mit Dachüberständen, unterschiedlichen Fassaden oder auch mit der Richtung des Treppenaufgangs bestimmen Sie Ihr persönliches Wohnerlebnis. Der nicht mittig platzierte Satteldach-Zwerchgiebel wird markant mit Lisenen betont. Die Anordnung der Fenstertüren erzeugt dabei ein harmonisches Gleichgewicht der bewusst gewählten Asymmetrie.
Hinweis: Bilder zeigen zum Teil auf- oder minderpreispflichtige Ausstattungsmerkmale.
Sie können den Viebrockhaus-Gesamtkatalog online oder auch telefonisch bestellen. Verwenden Sie dazu unser Kontaktformular.
Übersicht
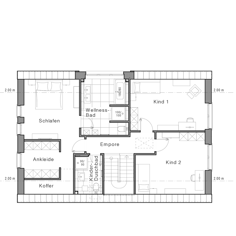
Wohnfläche: 181,42 m²
Maße: 9,10 x 13,55 m
Effizienzhaus 40
Dach: 37° Satteldach in Stadthausoptik
Baustil: 1,5 Geschosse
Selection-Hauspreis: 535.422 €
(*Käuferprovisionsfrei)
Merkmale
- Satteldach in Stadthausoptik
- 37° Dachneigung
- 152-cm-Drempel im Rohbaumaß
- 2 Badezimmer
- 3 Schlafzimmer
- Photovoltaik
- Smart-Home-Ausstattung








